Шоковая заморозка, низькотемпературні камери для переробки сиру
Продам/Купити
Тип: Приватне
Додано: 08.10.2025 о 11:14:41

Опис пропозиції:
Наша організація ТМ «Українська холодильна компанія» має багаторічний досвід роботи з провідними виробниками Української економіки хлібобулочної продукції.
У постійному зв’язку з практикуючими технологами та освітніми організаціями, пропонуємо нашим клієнтами якісні послуги з питань холодильної та кліматичної техніки, загалом вирішення моментів зберігання та заморозки в технологічній ланці підприємства Партнеру.
Наші інформаційні послуг
-консалтинг
-аналіз технологічних навантажень
-правильний підбір технічного завдання для інженерів,підрядників.
-аналіз ціни майбутніх витрат для обслуговування і використання електроенергії.
Наші інженерні послуги
-технічні розробки (передовий світовий досвід)
-інноваційні рішення
-проектування (офіційна ліцензія)
-прямі поставки з провідних заводів світу (економічність рішень)
-проведення монтажних та пусконалагоджувальних робіт
-сервісне обслуговування та повна інженерна підтримка в процесі експлуатації.
Підтримання штату компанії технологів майже всіх галузей харчової промисловості надає нам змогу постійно знаходитися в тренді своєї галузі.
Інженерний відділ знає та адаптує інноваційні рішення та досвід провідних світових компаній.
Також проходе постійне навчання і ліцензування.
Відділ поставок моніторить не тільки технічні можливості виробників обладнання та матеріалів,а ще мінімізує цінову категорію для виробників Української економіки.
Відділ монтажу та сервісу має спеціалізований транспорт,інструмент та багатий досвід реалізації подібних проектів.Також наші спеціалісти мають всі допуски для роботи з напрямками СС2 та СС3.
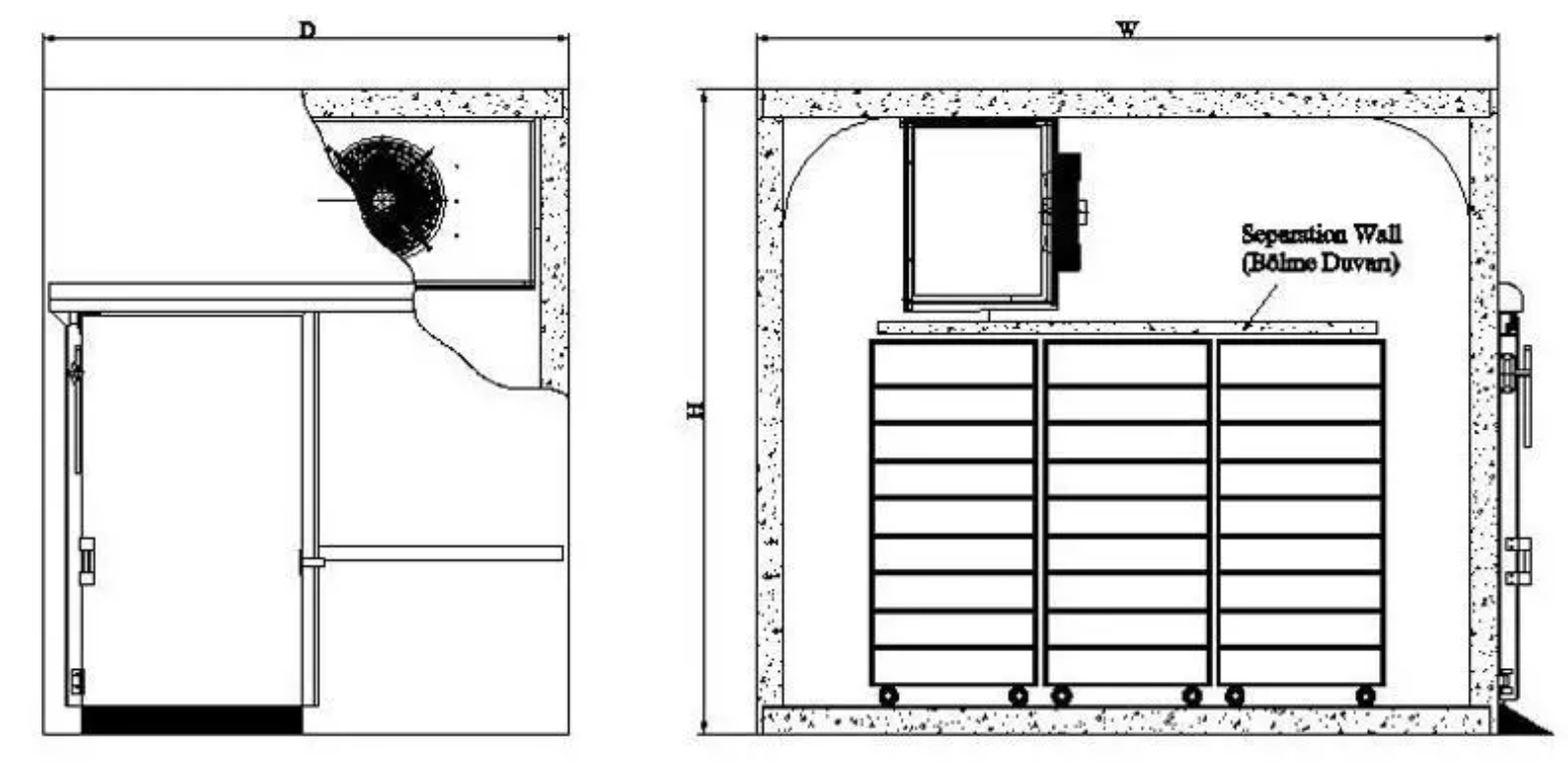
Наші продукти для сирної продукції
-молокоохолоджувачі
-середньотемпературна камера для зберігання сироватки та інших видів сировини
-камера дозрівання
-додаткове охолодження конвеєрів та ліній
-шокова заморозка
-тунельна заморозка
-морозильні камери
Професіоналізм-запорука якісного інвестування
Адреса:
м. Харків
просп. Льва Ландау, 149
Телефон: +380 96 623 4712
Електронна адреса: ukr.coolingcompany@gmail.com
Наш сайт: https://ukrholod.com/
У постійному зв’язку з практикуючими технологами та освітніми організаціями, пропонуємо нашим клієнтами якісні послуги з питань холодильної та кліматичної техніки, загалом вирішення моментів зберігання та заморозки в технологічній ланці підприємства Партнеру.
Наші інформаційні послуг
-консалтинг
-аналіз технологічних навантажень
-правильний підбір технічного завдання для інженерів,підрядників.
-аналіз ціни майбутніх витрат для обслуговування і використання електроенергії.
Наші інженерні послуги
-технічні розробки (передовий світовий досвід)
-інноваційні рішення
-проектування (офіційна ліцензія)
-прямі поставки з провідних заводів світу (економічність рішень)
-проведення монтажних та пусконалагоджувальних робіт
-сервісне обслуговування та повна інженерна підтримка в процесі експлуатації.
Підтримання штату компанії технологів майже всіх галузей харчової промисловості надає нам змогу постійно знаходитися в тренді своєї галузі.
Інженерний відділ знає та адаптує інноваційні рішення та досвід провідних світових компаній.
Також проходе постійне навчання і ліцензування.
Відділ поставок моніторить не тільки технічні можливості виробників обладнання та матеріалів,а ще мінімізує цінову категорію для виробників Української економіки.
Відділ монтажу та сервісу має спеціалізований транспорт,інструмент та багатий досвід реалізації подібних проектів.Також наші спеціалісти мають всі допуски для роботи з напрямками СС2 та СС3.
Наші продукти для сирної продукції
-молокоохолоджувачі
-середньотемпературна камера для зберігання сироватки та інших видів сировини
-камера дозрівання
-додаткове охолодження конвеєрів та ліній
-шокова заморозка
-тунельна заморозка
-морозильні камери
Професіоналізм-запорука якісного інвестування
Адреса:
м. Харків
просп. Льва Ландау, 149
Телефон: +380 96 623 4712
Електронна адреса: ukr.coolingcompany@gmail.com
Наш сайт: https://ukrholod.com/
Ціну не вказано
Ваша безпека!
За будь-яких умов, уникайте передоплат і не відправляйте дані ваших банківських карт.
Оголошення №117014 Шоковая заморозка, низькотемпературні камери для переробки сиру на board.if.ua переглянуто: 6 раз(и,ів)
Також вас можуть зацікавити ці оголошення з розділу Техніка, обладнання:
Нові оголошення
07 жовтня 2025 15:14:45Міняю будинок в селі поблизу Рівного
06 жовтня 2025 12:21:41Адміністратор
05 жовтня 2025 20:24:50Пам’ятники
04 жовтня 2025 23:30:58Ремонт окулярів за доступними цінами
03 жовтня 2025 16:16:51Не нудна робота в офісі
Популярні оголошення
Всього
32555
оголошень(ня)